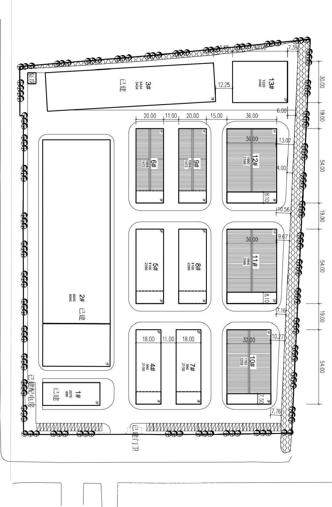
出售张家港国有地块,单层1472平,层高10米,有行车
浏览次数:96次
更新时间:2020年08月08日 09:14:53
- 编号:
- 意向:出售
- 类别:高配电
- 地址:江苏省苏州市张家港市
- 层高:10米
- 配电:300KV
- 价格:807万元
- 面积: 1472 平方米
招商部:13370091615
发布人




